Bauten des Architekten Kai Jacobsen, Hamburg
Sanierungen von EFH Einfamilienhäuser, MFH Mehrfamilienhäuser, Doppelhäuser, DH, DHH, Bürobauten, gewerbliche Bauten
Planung, Architektur, Baukonstruktion, Statik, Projektsteuerung, Bauleitung, Bauausführung
in Hamburg, Norddeutschland, Schleswig-Holstein, Niedersachsen, Bremen, Mecklenburg Vorpommern
Kiel, Flensburg, Rendsburg, Lübeck, Neumünster, Heide, Itzehoe, Pinneberg, Ahrensburg, Bad Segeberg, Bad Oldeslohe, Grevesmühlen, Schwerin, Wismar, Buchholz Nordheide, Soltau, Waldsrode, Lüneburg, Hitzacker
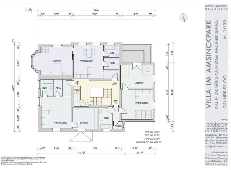
Sanierung der Amsinckvilla - HH-Lokstedt
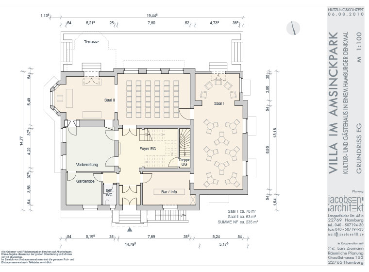
Sanierung der Amsinckvilla - HH-Lokstedt
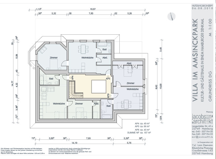
Sanierung der Amsinckvilla - HH-Lokstedt
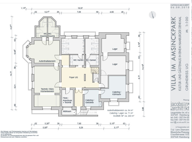
Sanierung der Amsinckvilla - HH-Lokstedt
Sanierung der Amsinckvilla - HH-Lokstedt
Sanierung der Amsinckvilla - HH-Lokstedt
Sanierung der Amsinckvilla - HH-Lokstedt
Sanierung der Amsinckvilla - HH-Lokstedt
Sanierung der Amsinckvilla - HH-Lokstedt
Sanierung der Amsinckvilla - HH-Lokstedt